Mieszkanie na sprzedaż
| Lokalizacja | Szczecin Warszewo | |
|---|---|---|
| Numer oferty | IDN32863 | |
| Rodzaj budynku | Niski blok | |
| Rok budowy | 2004 | |
| Materiał | Cegła | |
| Liczba pokoi | 3 | |
| Powierzchnia | 73 m2 | |
| Cena | 789 000 zł |
Mieszkanie bardzo atrakcyjnie położone w tzw. "starej" część Warszewa, nieruchomość stanowi kameralny, nieduży budynek, cała posesja jest ogrodzona. Wokół dominuje willowa zabudowa jednorodzinna. Okolica cicha i spokojna, z okien widok na zieleń. Przy posesji liczne miejsca parkingowe, bardzo dobry dojazd do centrum, w okolicy szkoła oraz liczne lokale użytkowe. W klatce jedynie 4 mieszkania.
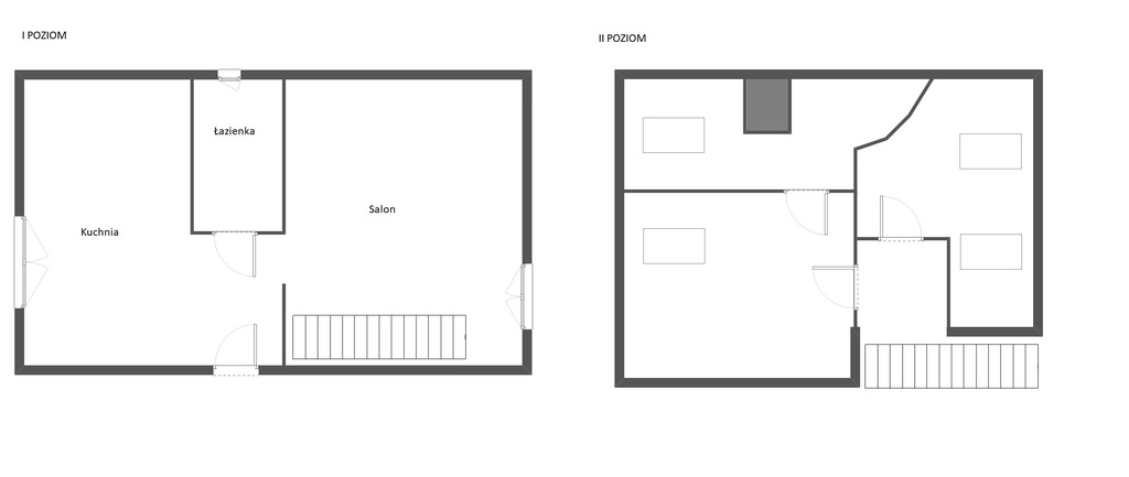
Lokal II poziomowy o funkcjonalnym układzie wnętrza, wykończony z dbałością o szczegóły. W cenie może zostać kompletne umeblowanie oraz wyposażenie.
I poziom to część dzienna, przestronny salon z kominkiem o powierzchni około 30m2, duża kuchnia otwarta na przedpokój, zabudowa kuchni na wymiar wraz z dużą wyspą (całość zostaje w cenie), łazienka z kabiną prysznicową (z oknem).
II poziom: dwa pokoje oraz łazienka z wanną narożną.
Ściany gładkie, malowane, na podłodze drewno egzotyczne.
Bezpośrednio pod budynkiem duży garaż (powierzchnia 29,44m2), do garażu zejście klatką schodową, garaż do dokupienia za dodatkowe 60.000 zł.
Polecam z uwagi na lokalizację oraz dobry standard wykończenia.
Zapraszam na prezentację.
| Rodzaj oferty | Mieszkanie na sprzedaż | ||
|---|---|---|---|
| Liczba pokoi | 3 | ||
| Liczba łazienek | 2 | ||
| Liczba pięter | 2 | ||
| Powierzchnia | 73 m2 | ||
| Cena | 789 000 zł (10 685 zł/m2) | ||
| Forma prawna | Własność | ||
| Forma prawna gruntu | Własność | ||
| Rodzaj budynku | Niski blok | ||
| Rok budowy | 2004 | ||
| Materiał | Cegła | ||
| Rodzaj ogrzewania | gazowe, co własne | ||
| Komunikacja | autobus | ||
| Dostępne w okolicy | kościół, plac zabaw, zabudowa niska, bar, szkoła, restauracja, las, przedszkole, sklep, apteka, przychodnia lekarska |