POWIERZCHNIA (M²)

CENA ZA M²

PIĘTRO

LICZBA POKOI

ROK BUDOWY

RYNEK

NUMER OFERTY

Poprzednia oferta
Powrót
Następna oferta

Powierzchnia biurowa ul. Struga, Szczecin

Wynajem obiektu komercyjnego

Lokalizacja Szczecin os. Słoneczne
Andrzeja Struga
Numer oferty BON44213
Rodzaj budynku Budynek biurowy
Rok budowy 2024
Liczba pokoi 9
Powierzchnia 891 m2
Cena 53 460 zł

Opis

Świetna lokalizacja na Prawobrzeżu. Dobry i szybki wyjazd na autostradę A6 i. S3

Duży, nowoczesny , dwupoziomowy budynek biurowy z miejscami parkingowymi.
Inwestycja planowana na rok 2025.
Możliwość dostosowania powierzchni biurowych pod Najemcę.
Powierzchnie biurowe, pomieszczenia socjalne, sanitariaty na każdym poziomie.
Możliwość najmu całego budynku lub piętra.
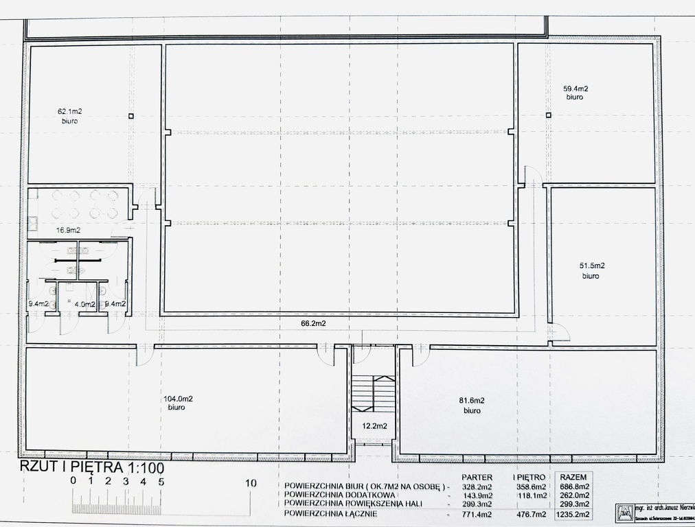
Projekt parteru : 414,5 m2 / powierzchnie biurowe, części wspólne
Projekt piętra : 476,7 m2 / powierzchni biurowej, części wspólne.
Parking pod budynkiem.
Cena najmu 60 zł/ m2 + vat, dodatkowo opłata serwisowa.
Już dzisiaj zaplanuj miejsce do pracy dla swojej Firmy.
Zapraszam do kontaktu.


Szczegóły
Rodzaj oferty Wynajem obiektu komercyjnego
Liczba pokoi 9
Liczba pięter 1
Powierzchnia 891 m2
Cena 53 460 zł (60 zł/m2)
Forma prawna Własność
Rodzaj budynku Budynek biurowy
Rok budowy 2024
Droga dojazdowa Asfaltowa
Stan budynku Idealny
Dodatkowo alarm    internet    klimatyzacja    ochrona