Lokal usługowy na sprzedaż
| Lokalizacja | Szczecin Pomorzany | |
|---|---|---|
| Numer oferty | ASP21552 | |
| Rodzaj budynku | Apartamentowo-handlowy | |
| Rok budowy | 1996 | |
| Materiał | Cegła | |
| Liczba pokoi | 3 | |
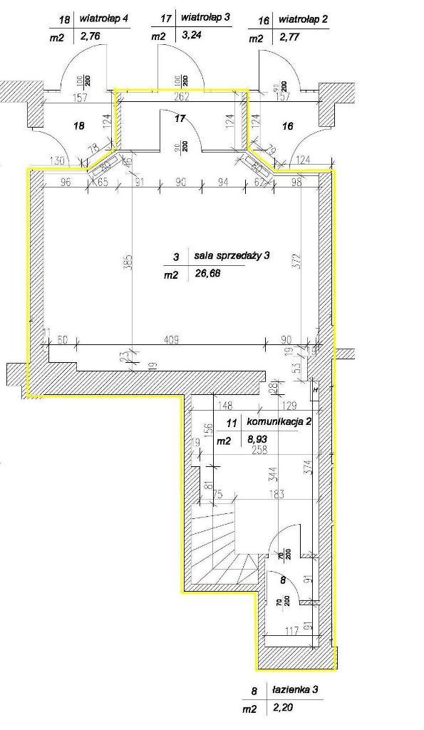
| Powierzchnia | 45 m2 | |
| Cena | 490 000 zł |
Na sprzedaż lokal w zabudowie ( w ciągu lokali handlowo - usługowych ) zlokalizowany przy bardzo ruchliwej i dobrze skomunikowanej ulicy na Pomorzanach. Oferowana powierzchnia to 45 m2, w tym sala sprzedaży, pomieszczenie biurowe/magazyn oraz toaleta. Na podłodze terakota, ściany malowane, w części glazura. Sufit podwieszany z zamontowanym oświetleniem rastrowym. Ogrzewanie i ciepła woda z sieci miejskiej. Lokal posiada nowe, aluminiowe witryny wystawowe. Wejście do lokalu z ulicy, poprzez wiatrołap. Możliwość powieszenia reklamy w obrębie lokalu. Cały budynek jest monitorowany, kamery znajdują się przed lokalem., Duży ruch pieszych, miejsca parkingowe ogólnodostępne. W bezpośredniej bliskości sklep Biedronka, liczne banki i sklepy wielu branż, w pobliżu Tesco i CH MOLO, otoczenie osiedli mieszkaniowych.
| Rodzaj oferty | Lokal usługowy na sprzedaż | ||
|---|---|---|---|
| Liczba pokoi | 3 | ||
| Liczba pięter | 5 | ||
| Powierzchnia | 45 m2 | ||
| Cena | 490 000 zł (10 888 zł/m2) | ||
| Forma prawna | Spółdzielcze własnościowe prawo | ||
| Rodzaj budynku | Apartamentowo-handlowy | ||
| Rok budowy | 1996 | ||
| Materiał | Cegła | ||
| Stan budynku | Bardzo dobry |