Dom na sprzedaż
| Lokalizacja | Szczecin Gumieńce | |
|---|---|---|
| Numer oferty | BON43816 | |
| Rok budowy | 2003 | |
| Materiał | Cegła | |
| Liczba pokoi | 6 | |
| Powierzchnia | 218 m2 | |
| Działka | 482 m2 | |
| Cena | 1 330 000 zł |
Wyjątkowa oferta domu w zabudowie wolnostojącej położonego na Gumieńcach.
Budynek z 2003 roku z poddaszem użytkowym, pomieszczeniami gospodarczymi i garażem.
Powierzchnia użytkowa wynosi ponad 145 m2. Powierzchnia całkowita to ponad 218 m2, na którą składa się:
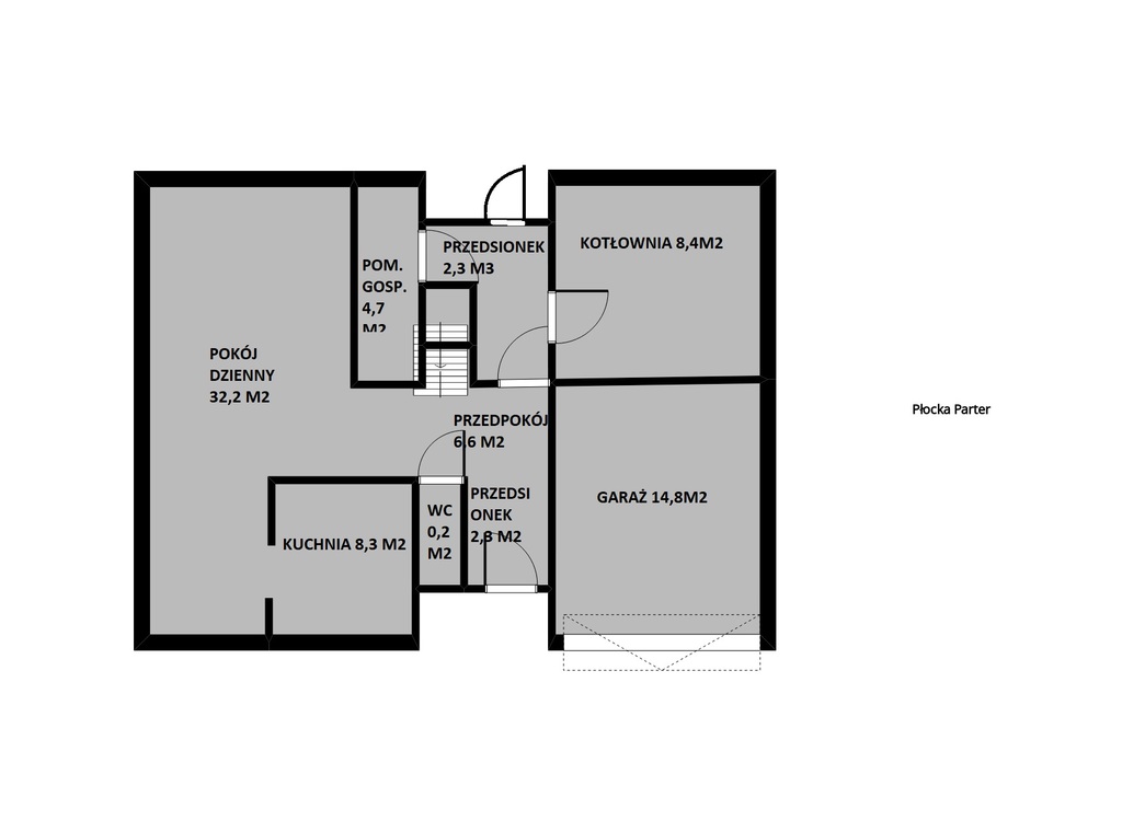
- Parter z salonem (32,2), kuchnią (8,3), wc, przedsionkiem oraz częścią gospodarczą z pralnią, spiżarnią i schowkiem
- Piętro z czterema pokojami (10,45; 11,9; 21,8; 22,2) oraz łazienką z natryskiem i wc (7,4),
- Poddasze - wykończona łazienka z wanną (7,4) i dwa duże pomieszczenia do adaptacji (24,9; 49,7),
- garaż (14,8).
Zadbana działka o powierzchni 482 m2.
Niskie koszty utrzymania. Ogrzewanie z pieca gazowego dwuobiegowego. W łazienkach dodatkowo bojlery.
Dom usytuowany w bardzo lubianej dzielnicy Gumieńce, w bocznej uliczce, pośród zabudowy domów jednorodzinnych.
Doskonała lokalizacja - kilka minut od Centrum. W pobliżu wiele sklepów, budynków użyteczności publicznej i oświaty.
Ciche, spokojne miejsce, idealne dla rodziny.
Zapraszam do kontaktu i na prezentację.
| Rodzaj oferty | Dom na sprzedaż | ||
|---|---|---|---|
| Liczba pokoi | 6 | ||
| Liczba łazienek | 3 | ||
| Liczba pięter | 1 | ||
| Powierzchnia | 218 m2 | ||
| Działka | 482 | ||
| Cena | 1 330 000 zł (6 098 zł/m2) | ||
| Forma prawna | Własność | ||
| Rok budowy | 2003 | ||
| Droga dojazdowa | Asfaltowa | ||
| Materiał | Cegła | ||
| Stan budynku | Dobry | ||
| Dodatkowo | piwnica    ogród     |