Dom na sprzedaż
| Lokalizacja | Mierzyn | |
|---|---|---|
| Numer oferty | SCN22742 | |
| Rok budowy | 2021 | |
| Materiał | Cegła | |
| Liczba pokoi | 5 | |
| Powierzchnia | 220 m2 | |
| Działka | 793 m2 | |
| Cena | 1 300 000 zł |
Na sprzedaż kompaktowy dom wolnostojący w cichej uliczce bocznej przy ul. Łukasińskiego.
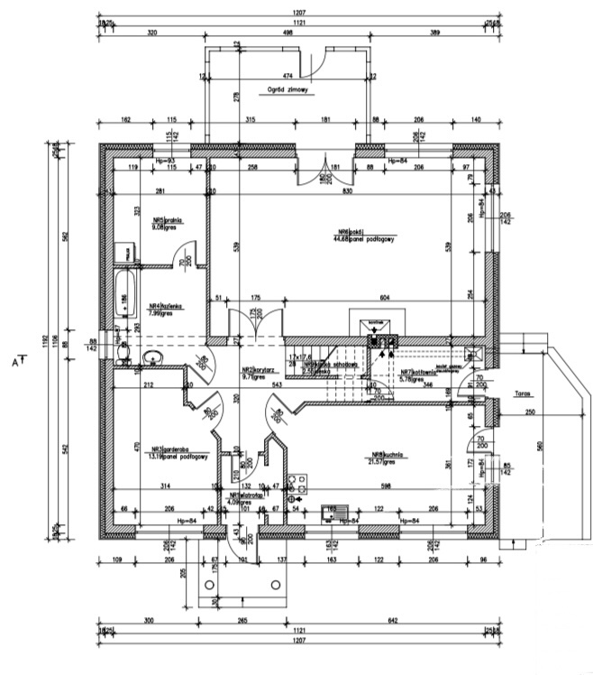
Na powierzchnię całkowitą 220 m2 składają się :
- parter:
salon 44,68m2 z kominkiem z rozprowadzeniem z wyjściem na zadaszony taras,
sypialnia,
osobna kuchnia z jadalnia z wyjściem na taras nr 2- 21,51m2,
kotłownia,
pokój kąpielowy z pralnią- 17m2,
hall,
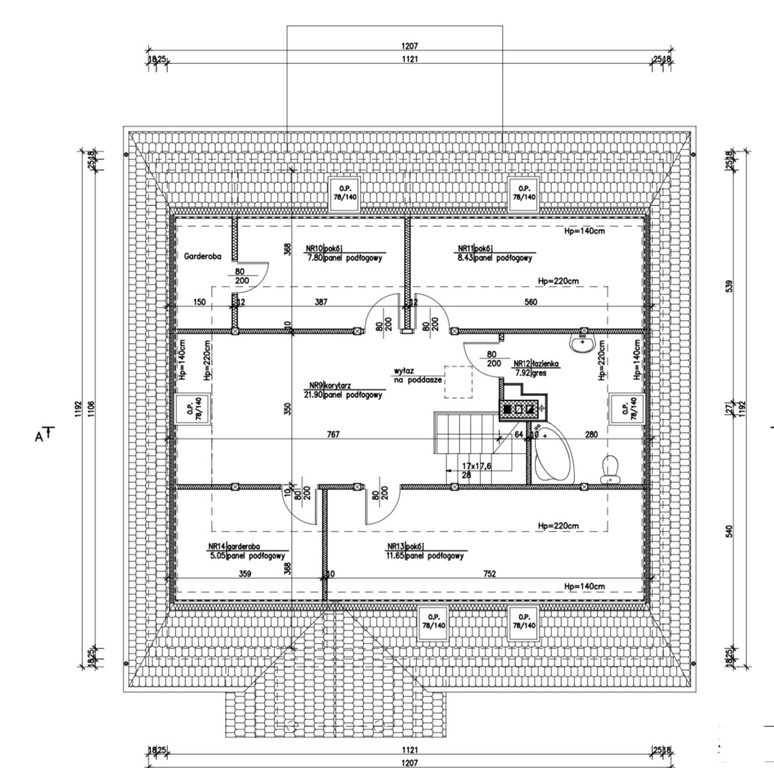
- piętro:
hall,
3 pokoje (7,8m2,8,43m2,11,65m2)
garderoba- 5,05m2,
łazienka 7,92m2.
Poddasze - funkcja przechowywania.
Ładnie zagospodarowana działka o powierzchni 793m2. Na jej terenie posadowiony garaż wolnostojący, pomieszczenie gospodarcze wraz z piwnicą łącznie 68m2.
Dom samowystarczalny i ekonomiczny: woda z ujęcia własnego, 3 alternatywy ogrzewania: kominek, gazowe i piec na biomasę, co pomoże obniżyć koszty eksploatacji w dzisiejszych czasach.
Miejsce to jest idealne dla osób poszukujących spokoju i prywatności, a jednocześnie ceniących bliskość miasta.
Okolica oferuje możliwość wspaniałych spacerów i aktywnego wypoczynku.
Bezpośredni dojazd do nieruchomości drogą gminną.
Szybkie wydanie!
| Rodzaj oferty | Dom na sprzedaż | ||
|---|---|---|---|
| Liczba pokoi | 5 | ||
| Liczba łazienek | 2 | ||
| Liczba pięter | 1 | ||
| Powierzchnia | 220 m2 | ||
| Działka | 793 | ||
| Cena | 1 300 000 zł (5 909 zł/m2) | ||
| Forma prawna | Własność | ||
| Rok budowy | 2021 | ||
| Droga dojazdowa | Utwardzona | ||
| Materiał | Cegła | ||
| Stan budynku | Dobry | ||
| Rodzaj ogrzewania | kominkowe, inne, gazowe | ||
| Komunikacja | autobus | ||
| Dodatkowo | alarm     przystosowane dla niepełnosprawych    internet    kominek    piwnica    ogród    monitoring     |