POWIERZCHNIA (M²)

CENA ZA M²

PIĘTRO

LICZBA POKOI

ROK BUDOWY

RYNEK

NUMER OFERTY

Poprzednia oferta
Powrót
Następna oferta

Idealny lokal na kancelarię!

Lokal usługowy na sprzedaż

Lokalizacja Szczecin Śródmieście-Centrum
Numer oferty BON42987
Rodzaj budynku Kamienica
Rok budowy 1935
Materiał Cegła
Liczba pokoi 2
Powierzchnia 91 m2
Cena 770 000 zł

Opis

Lokal użytkowy na sprzedaż w samym centrum Szczecina:))

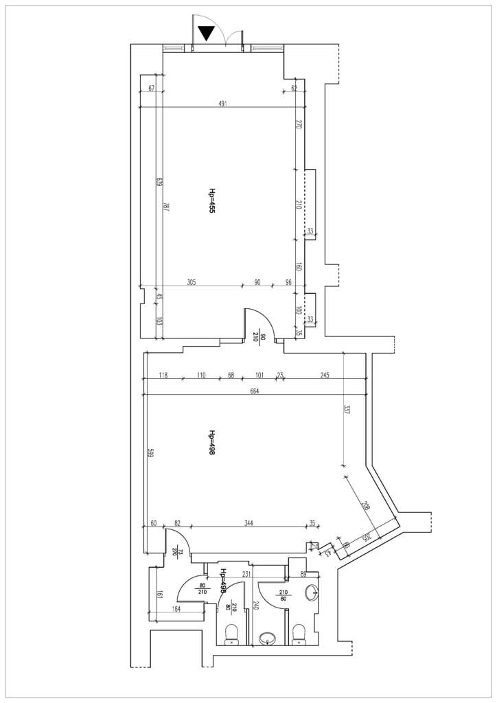
Oferujemy do sprzedaży lokal użytkowy o pow. 91,35 m2 położony w bezpośrednim sąsiedztwie Sądu Rejonowego Prawobrzeże - Zachód , licznych sklepów, bardzo duży przepływ ludzi. Składa się z dwóch pomieszczeń biurowych, wewnętrznej komunikacji i węzła sanitarnego. Pomieszczenia biurowe doświetlone bezpośrednio - pierwsze przez witrynę i przeszklone drzwi zlokalizowane we froncie budynku, drugie porzez okno wychodzące na wewnętrzny dziedziniec.

Lokal wyposażony jest w instalację elektryczną, wentylacji, wodno-kanalizacyjną ( ciepła woda użytkowa przygotowywana za pomocą przepływowego elektrycznego ogrzewacza). Rozliczenie za c.o. odbywa się proporcjonalnie do udziału powierzchni w budynku.

Aktulanie lokal jest skomerjalizowany a wszystkie kosztY wraz z mediami pokrywa najemca. Sprzątanie części wspólnych/miesięcznie 300 PLN, podatek od nieruchomości/ rocznie - 2629, 05 PLN, użytkowanie wieczyste/ rocznie - 285, 78 PLN, ubezpieczenie nieruchomości / rocznie - 369,23 PLN.

Położenie lokalu (unikatowa lokalizacja, - idealny na każdą działalność a zwłaszcza kancelarię), niska cena sprzedaży to główne atuty oferowanej nieruchomości.

Uwaga: Uwaga do ceny nalęzy doliczyć należny podatek VAT.

Taka szansa może się już nie powtórzyć:)))

Zapraszamy na prezentację.


Szczegóły
Rodzaj oferty Lokal usługowy na sprzedaż
Liczba pokoi 2
Liczba pięter 4
Powierzchnia 91 m2
Cena 770 000 zł (8 429 zł/m2)
Forma prawna Własność
Forma prawna gruntu Własność
Rodzaj budynku Kamienica
Rok budowy 1935
Materiał Cegła
Stan budynku Bardzo dobry