Dom na sprzedaż
| Lokalizacja | Tanowo | |
|---|---|---|
| Numer oferty | VSZ21309 | |
| Rok budowy | 2023 | |
| Materiał | Cegła | |
| Liczba pokoi | 4 | |
| Powierzchnia | 98 m2 | |
| Działka | 199 m2 | |
| Cena | 770 040 zł |
Na sprzedaż nowe domy w zabudowie bliźniaczej w Tanowie.
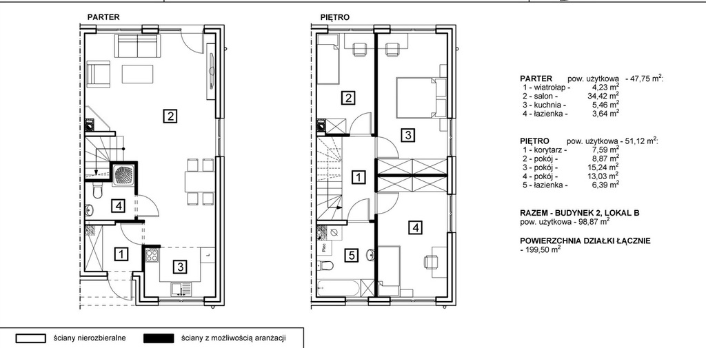
Powierzchnia użytkowa 98,87m2, na którą składają się:
PARTER
-wiatrołap,
-salon,
-kuchnia,
-łazienka,
PIĘTRO
-korytarz,
-3 pokoje,
-łazienka.
Położone na działkach 200-280m2, na których znajdują się dwa miejsca postojowe.
Domy wydawane do użytku w stanie deweloperskim w połowie 2023 roku.
Wybudowane z cegły silikatowej, dachówka ceramiczna, okna PCV, drzwi wejściowe antywłamaniowe.
Ogrzewanie gazowe, w salonie istnieje możliwość zamontowania kominka- wolny kanał kominkowy.
Okolica jest cicha i spokojna, w pobliżu las, a w niedalekiej odległości szkoła, przedszkole, sklepy, przystanki komunikacji miejskiej.
Zapraszam do kontaktu.
| Rodzaj oferty | Dom na sprzedaż | ||
|---|---|---|---|
| Liczba pokoi | 4 | ||
| Liczba łazienek | 2 | ||
| Liczba pięter | 1 | ||
| Powierzchnia | 98 m2 | ||
| Działka | 199 | ||
| Cena | 770 040 zł (7 788 zł/m2) | ||
| Forma prawna | Własność | ||
| Forma prawna gruntu | Własność | ||
| Rok budowy | 2023 | ||
| Droga dojazdowa | Utwardzona | ||
| Materiał | Cegła | ||
| Stan budynku | Stan deweloperski | ||
| Dodatkowo | kominek    ogród     |