POWIERZCHNIA (M²)

CENA ZA M²

PIĘTRO

LICZBA POKOI

ROK BUDOWY

RYNEK

NUMER OFERTY

Poprzednia oferta
Powrót
Następna oferta

Top Lokalizacja przy Amazon A6, 13 - 8600m2

Działka na sprzedaż

Lokalizacja Kołbaskowo
Numer oferty INS21720
Działka 8600 m2
Cena 1 550 000 zł

Opis

Na sprzedaż działka z projektem w bardzo dobrej lokalizacji przy centrum logistycznym Amazon Kołbaskowo.
W okolicy stacja paliw Orlen i Lotos.
Powierzchnia działki to ok. 8600m2. Bezpośrednio przy Autostradzie A6 łączącej Berlin z Gdańskiem oraz drogą krajową nr 13, zjazd/wjazd - prawo i lewo skrętny z drogi krajowej numer 13.
Działka uzbrojona w media:
- prąd (skrzynka ZK na działce)
- gaz, woda i kanalizacja bezpośrednio w drodze ok. 20-30m.
Działka jest bardzo widoczna , latem przejeżdża ok. 20 tys. pojazdów na dobę (wyliczenia GDDKiA).
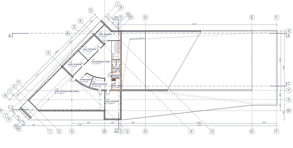
Działka posiada projekt na 1000m2 powierzchni biurowej (3 kondygnacje) i możliwość w kolejnym etapie rozbudowy o magazyn o pow. 700m2 ( po przeniesieniu zjazdu, związanego z budową nowego węzła obwodnicy zachodniej Szczecina.
Więcej informacji udzielimy telefonicznie.


Szczegóły
Rodzaj oferty Działka na sprzedaż
Działka 8600
Cena 1 550 000 zł (180 zł/m2)
Forma prawna gruntu Własność
Droga dojazdowa Asfaltowa
Komunikacja autobus
Odległość od centrum miasta 5 km