Dom na sprzedaż
| Lokalizacja | Wołczkowo | |
|---|---|---|
| Numer oferty | GAL21105 | |
| Rok budowy | 2023 | |
| Materiał | Ceramika | |
| Liczba pokoi | 5 | |
| Powierzchnia | 109 m2 | |
| Działka | 500 m2 | |
| Cena | 780 000 zł |
Na sprzedaż dom jednorodzinny w zabudowie bliźniaczej w Wołczkowie pod samym lasem. Dostępne będą 4 lokale, każdy o takim samym metrażu 109,20 m2. Prace już trwają, termin oddania to połowa 2024, można już rezerwować.
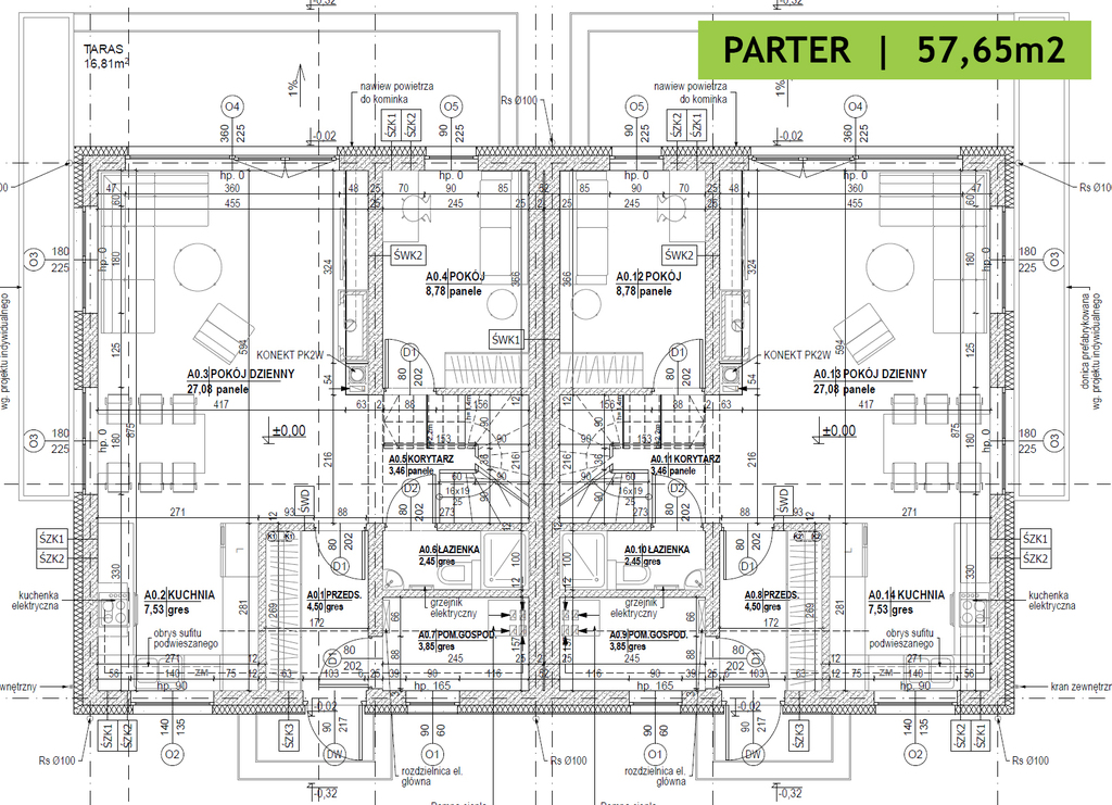
Parter (57,65 m2):
- salon (27,08m2)
- kuchnia (7,53m2)
- pokój/gabinet (8,78m2)
- WC (2,45m2)
- pom. gospodarcze (3,85m2)
- wiatrołap (4,50m2)
- korytarz (3,46m2).
Piętro (51,55 m2):
- sypialnia (12,73m2)
- pokój (11,97m2)
- pokój (11,97m2)
- łazienka (9,20m2)
- korytarz (5,68m2).
Bliźniaki wznoszone przez wprawionego inwestora (ponad 30letnie doświadczenie w budowie domów na terenie Szczecina i okolic), przy użyciu materiałów z najwyższej półki:
- ściany Porotherm Dryfix
- ocieplenie Swisspor Lambda White 15cm (łączy zalety szarego i białego styropianu)
- podwójna ściana między lokalami izolowana wełną (dodatkowa izolacja akustyczna)
- stropy monolityczne lane
- okna Schüco z drzwiami przesuwnymi w salonie
- płaska dachówka ceramiczna BRAAS
- rekuperacja + ogrzewanie podłogowe w całym domu (piec gazowy z zasobnikiem).
Dojazd do posesji oraz podjazdy będą wyłożone polbrukiem. Teren wyrównany i ogrodzony. W okolicy przystanek autobusowy, szkoła, boisko, przedszkole, urząd gminy. Do marketu Dino 2 km.
Ta oferta to świetna alternatywa dla mieszkania: głównie ze względu na kompaktowy metraż i dodatkowy, często poszukiwany w takich realizacjach pokój na parterze. Otoczenie lasu gratis :)
Termin oddania: połowa 2024.
Do zobaczenia na prezentacji!
| Rodzaj oferty | Dom na sprzedaż | ||
|---|---|---|---|
| Liczba pokoi | 5 | ||
| Liczba łazienek | 1 | ||
| Liczba pięter | 1 | ||
| Powierzchnia | 109 m2 | ||
| Działka | 500 | ||
| Cena | 780 000 zł (7 142 zł/m2) | ||
| Forma prawna | Własność | ||
| Rok budowy | 2023 | ||
| Droga dojazdowa | Utwardzona | ||
| Materiał | Ceramika | ||
| Stan budynku | Stan deweloperski | ||
| Rodzaj ogrzewania | gazowe | ||
| Dostępne w okolicy | sklep, przedszkole, las, szkoła, restauracja, zabudowa niska, kościół | ||
| Dodatkowo | ogród     |