Dom na sprzedaż
| Lokalizacja | Dobra | |
|---|---|---|
| Numer oferty | MOJ21929 | |
| Rok budowy | 2023 | |
| Materiał | Bloczki | |
| Liczba pokoi | 5 | |
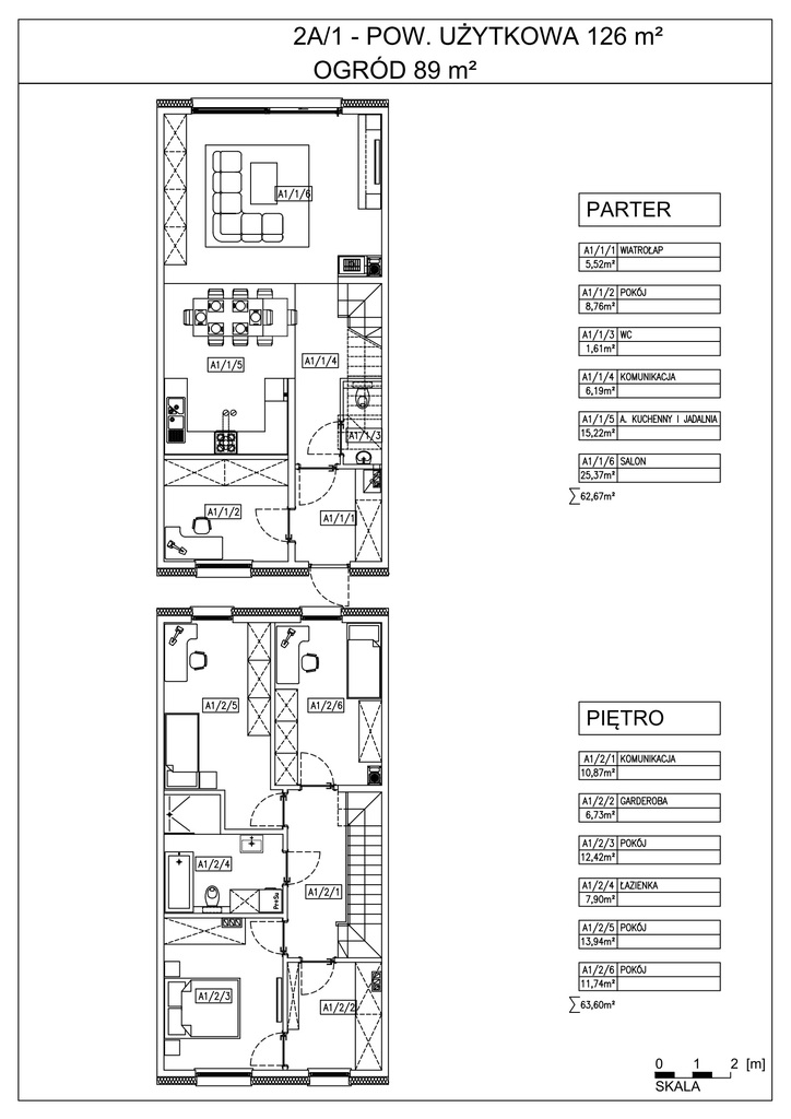
| Powierzchnia | 126 m2 | |
| Działka | 89 m2 | |
| Cena | 770 000 zł |
Do sprzedania nowo powstała inwestycja domu w zabudowie bliźniaczej dwulokalowej. Dwa lokale środkowe i jeden skrajny. Opisywana nieruchomość została wybudowana z bloczków ocieplona styropianem 15 cm, Okna PCV , CO i CW w całości podłogowe piec dwuobiegowy kondensat. Na parterze znajdują się: hol, WC, pokój typu gabinet, aneks kuchenny z jadalnią i salon z wyjściem na ogród, piętro to trzy sypialnie w tym jedna z garderobą i dużą łazienka razem z WC. Całe piętro bez skosów. Dwa miejsca postojowe przed domem. Dojazd do posesji droga asfaltową. Blisko szkoła przedszkole oraz komunikacja miejska. Niezbędna infrastruktura sklepów spożywczym w obrębie jednego km. Dom po odbiorach, zainteresowane osoby zapraszam do bezpośredniego kontaktu z maklerem prowadzącym.
| Rodzaj oferty | Dom na sprzedaż | ||
|---|---|---|---|
| Liczba pokoi | 5 | ||
| Liczba łazienek | 1 | ||
| Liczba pięter | 1 | ||
| Powierzchnia | 126 m2 | ||
| Działka | 89 | ||
| Cena | 770 000 zł (6 111 zł/m2) | ||
| Forma prawna | Własność | ||
| Forma prawna gruntu | Własność | ||
| Rok budowy | 2023 | ||
| Droga dojazdowa | Asfaltowa | ||
| Materiał | Bloczki | ||
| Stan budynku | Stan deweloperski | ||
| Dodatkowo | internet    telewizja kablowa    kominek    ogród     |