Dom na sprzedaż
| Lokalizacja | Szczecin Skolwin | |
|---|---|---|
| Numer oferty | BON42670 | |
| Rok budowy | 2020 | |
| Materiał | Silikat | |
| Liczba pokoi | 6 | |
| Powierzchnia | 421 m2 | |
| Działka | 4558 m2 | |
| Cena | 3 800 000 zł |
Wyjątkowy dom wolnostojący z 2021 roku na pograniczu Szczecina i Polic.
Położony jest na skarpie i otoczony jest własnym lasem, na ogrodzonej działce o pow. 4558 m2 .
Dom posiada nowoczesną bryłę zewnętrzną z bardzo dużym tarasem od strony lasu.
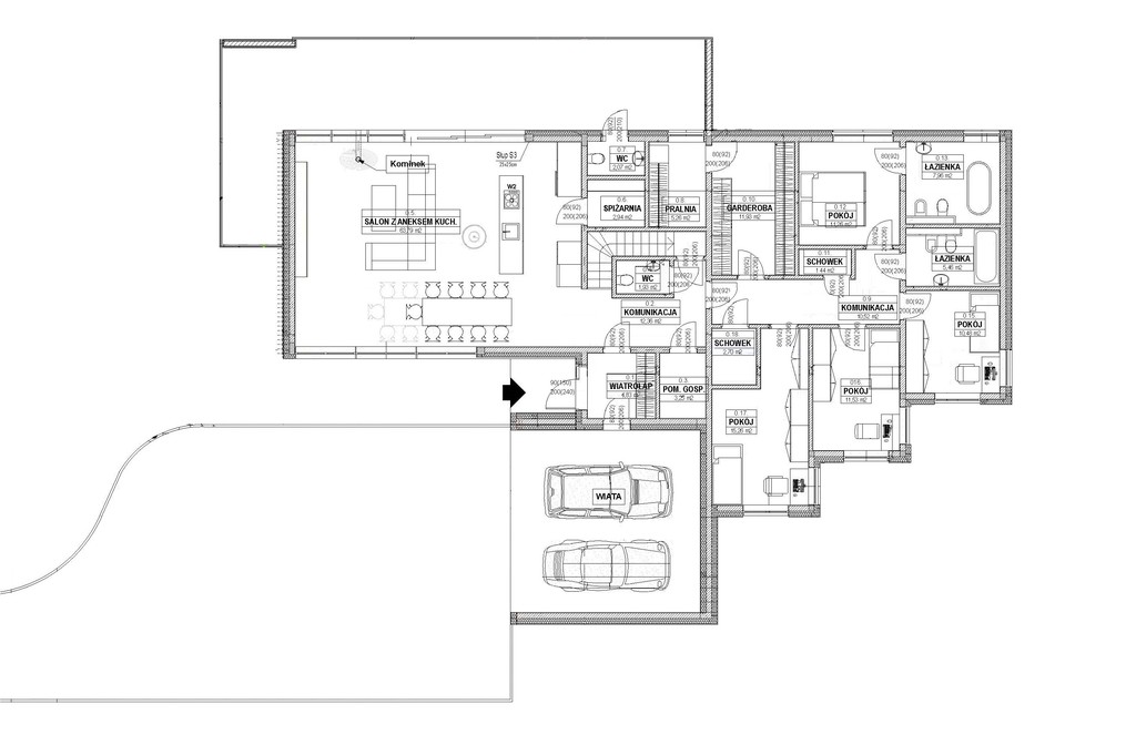
Projekt nieruchomości jest bardzo dobrze przemyślany i funkcjonalny .
Powierzchnia użytkowa domu to 184,97 m2 (całkowita wraz z piwnicą i poddaszem 421,43 m2) plus garaż dwustanowiskowym w bryle budynku.
Nieruchomość podzielona została na dwie strefy dzienną i nocną .
W strefie dziennej znajduje się :
-bardzo przestronny i wysoki salon z jadalnią i aneksem kuchennym (pow. 63,7 9m2) z wyjściem na taras z widokiem na las
-spiżarnia (2,94 m2)
-2 toalety ( w tym jedna z wejściem tylko od tarasu)
-pomieszczenie gospodarcze (3,25 m2)
-wiatrołap z przejściem do garażu (4,83 m2)
-dodatkowo przestrzeń poddasza typu open space do możliwej aranżacji na np. gabinet (43,93 m2)
Strefa nocna to:
-sypialnia główna (11,26 m2) z własną łazienką (7,96 m2)
-3 pokoje (15,26 m2, 11,53 m2, 10,48 m2)
-łazienka (5,46 m2)
-2 schowki
-garderoba (11,93 m2) połączona z pralnią (5,26 m2)
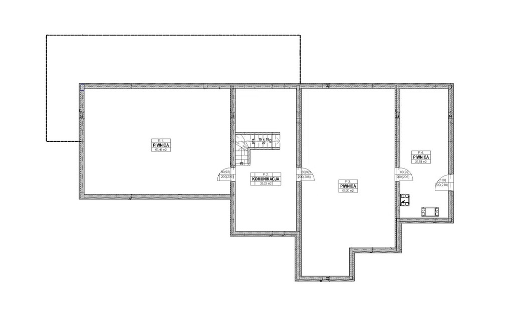
Cały dom jest podpiwniczony. W skład piwnicy (ogrzewanie podłogowe na całej powierzchni), która jest jeszcze nie wykończona, a daje duże możliwości aranżacyjne wschodzi :
- pomieszczenie o pow. 63,46 m2, które było zaplanowane na siłownie / pokój rekreacyjny
- przestrzeń na saune i strefę spa (68,20 m2)
- pomieszczenie techniczne wraz z miejscem na rzeczy ogrodowe z wyjściem na ogród/las (25,54 m2)
Dodatkowo do wykorzystania jest antresola przy salonie, do której można poprowadzić schody i wykorzystać przestrzeń (43,93 m2) na gabinet open space.
Konstrukcja:
Budynek został wybudowany w nowej technologii z naciskiem na ekologiczne i energooszczędne rozwiązania. Konstrukcja tradycyjna murowana , żelbetowa z elementami konstrukcyjnymi stalowymi. Ściany zewnętrzne budynku zostały wybudowane z bloczków silikatowych o grubości 18 cm na systemowej zaprawie ciepłochłonnej. Ocieplenie po obwodzie zewnętrznym ścian metodą lekko mokrą w systemie z listwą startową i kapinosem, styropianem elewacyjnym gr. 18cm, z wykończeniem zewnętrznym tynkiem silikonowym na siatce. Dach dwuspadowy w konstrukcji drewnianej przykryty dachówką ceramiczną.
Specyfikacja techniczna:
– ciepła woda użytkowa oraz ogrzewanie za pomocą napowietrznej pompy ciepła
– w cały domu instalacja grzewcza podłogowa
– zamontowana fotowoltaika
- rozprowadzona instalacja elektryczna pod montaż oprogramowania inteligentnego domu
- wyprowadzona instalacja pod rekuperatory
- przydomowa biologiczna oczyszczalnia ścieków
- okna 3 szybowe firmy Budtrans wraz z roletami antywłamaniowymi
Okolica:
Nieruchomość położona na północy Szczecina w okolicy nowych domów jednorodzinnych.
Wokół domu znajduje się prywatny las , gdzie można cieszyć się dużym spokojem i wyjątkowym widokiem , ponieważ położony jest na wzniesieniu.
Do Centrum Szczecina jest około 20min a do Polic około 8min .
Nieruchomość jest w trakcie wykańczania.
Cena do negocjacji.
Oferta na Wyłączność.
Zapraszam na prezentacje
| Rodzaj oferty | Dom na sprzedaż | ||
|---|---|---|---|
| Liczba pokoi | 6 | ||
| Liczba pięter | 1 | ||
| Powierzchnia | 421 m2 | ||
| Działka | 4558 | ||
| Cena | 3 800 000 zł (9 016 zł/m2) | ||
| Forma prawna | Własność | ||
| Rok budowy | 2020 | ||
| Droga dojazdowa | Utwardzona | ||
| Materiał | Silikat | ||
| Stan budynku | Do wykończenia | ||
| Dodatkowo | klimatyzacja    ogród    monitoring     |