Wynajem obiektu komercyjnego
| Lokalizacja | Szczecin Golęcino | |
|---|---|---|
| Numer oferty | EXT24598 | |
| Rodzaj budynku | Hala | |
| Rok budowy | 1970 | |
| Materiał | Stal | |
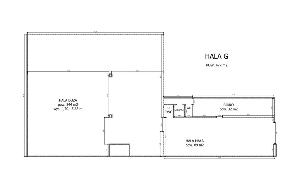
| Powierzchnia | 477 m2 | |
| Cena | 13 650 zł |
Na wynajem hala o powierzchni 477m2.
Nieruchomość na bardzo atrakcyjnym terenie, łatwy wyjazd z miasta, sąsiedztwo działalności handlowo przemysłowych.
Hala składa się z :
✰ pomieszczenia biurowego przy wejściu do hali ( ogrzewane elektrycznie )- 32 m2, z zapleczem socjalnym
✰ mała hala - 89m2
✰ duża hala - 344m2, h= 4,7-5,68m
✰ toalety dla klientów
! hala dostępna od zaraz
! hala posiada rampę rozładowczą
! hala wyposażona w nowe naświetla z 2022 roku.
Cena netto: 13 650 zł
Kaucja 20 000 zł
koszty obsługi 80 zł
+ Prąd, woda
Do Hali jest przyporządkowana tania taryfa za prąd do 06.2024.
Opis oferty zawarty na stronie internetowej sporządzany jest na podstawie oględzin nieruchomości oraz informacji uzyskanych od właściciela, może podlegać aktualizacji i nie stanowi oferty określonej w art. 66 i następnych K.C.
Opłacalne dla produkcji .
Najem minimum Rok.
Wystawiamy FV VAT.
Cały teren zamykany na noc i monitorowany.
| Rodzaj oferty | Wynajem obiektu komercyjnego | ||
|---|---|---|---|
| Powierzchnia | 477 m2 | ||
| Cena | 13 650 zł (28 zł/m2) | ||
| Rodzaj budynku | Hala | ||
| Rok budowy | 1970 | ||
| Materiał | Stal | ||
| Stan budynku | Idealny |