Wynajem obiektu komercyjnego
| Lokalizacja | Mierzyn | |
|---|---|---|
| Numer oferty | HOR21480 | |
| Rodzaj budynku | Magazynowo-biurowy | |
| Rok budowy | 1995 | |
| Materiał | Cegła | |
| Liczba pokoi | 5 | |
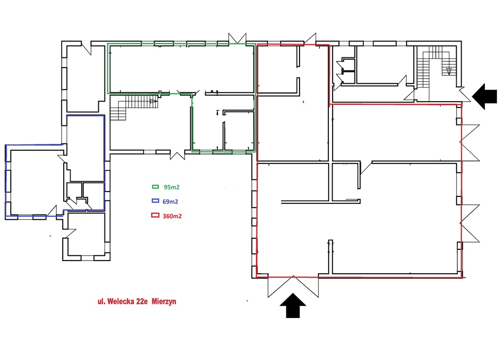
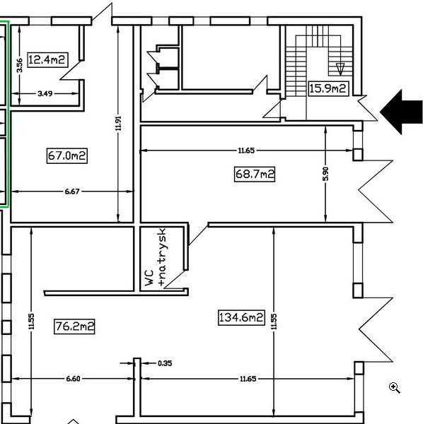
| Powierzchnia | 360 m2 | |
| Cena | 16 000 zł |
Powierzchnia biurowa, sklepowa oraz sklepowo - biurowa 155m2 wraz z zapleczem magazynowym 205m2 i dużą ilością miejsc parkingowych. 360m2 w parterze. Idealna powierzchnia pod sklep detaliczny połączony z bazą biurową, magazynową i serwisową. Powierzchnia wynajęcia na rzucie zaznaczona kolorem czerwonym.
Doskonała widoczność obiektu. W cenie duże powierzchnie reklamowe. Duża ilość miejsc postojowych. Dostęp 24h. Obiekt bezpieczny - stale dozorowany. Budynek z lat 90-tych. Kilka wjazdów na teren ułatwia manewrowanie pojazdami ciężarowymi.
Atuty:
- część wystawowa ( sklep )
- 3 małe pomieszczenia biurowe
- duża część magazynowa
- część socjalna
- pomieszczenie serwisowe
- 3 wejścia do powierzchni ( osobno sklep, osobno magazyn, osobno serwis )
- brama wjazdowa automatyczna
Powierzchnia magazynowa :
- wysokość pomieszczenia około 4m
- w całości ogrzewane
- posadzka nie jest bezpyłowa ale wyłożona niepylną gumą
- 10KW - 20KW - na terenie jest trafostacja
- wymiar bramy: 260szer x 285h
- wymiar bramy od serwisu: 170szer x 215h
- możliwa 3 brama : 370 x 370
- wymiary bram wjazdowych na teren takie że bez problemów wjeżdżają tiry
Czynsz 16 000zł/miesięcznie netto + vat + prąd. Pozostałe media w czynszu. Wymagana kaucja.
Istnieje możliwość najmu dodatkowo większej powierzchni biurowej ok. 120m2, oraz dodatkowej powierzchni gruntowej, nawet 2000m2.
| Rodzaj oferty | Wynajem obiektu komercyjnego | ||
|---|---|---|---|
| Liczba pokoi | 5 | ||
| Liczba pięter | 1 | ||
| Powierzchnia | 360 m2 | ||
| Cena | 16 000 zł (44 zł/m2) | ||
| Forma prawna | Własność | ||
| Rodzaj budynku | Magazynowo-biurowy | ||
| Rok budowy | 1995 | ||
| Droga dojazdowa | Utwardzona | ||
| Materiał | Cegła | ||
| Stan budynku | Bardzo dobry | ||
| Dodatkowo | przystosowane dla niepełnosprawych    internet    ochrona    monitoring     |