Dom na sprzedaż
| Lokalizacja | Tanowo | |
|---|---|---|
| Numer oferty | INS21663 | |
| Rok budowy | 2023 | |
| Materiał | Cegła | |
| Liczba pokoi | 4 | |
| Powierzchnia | 100 m2 | |
| Działka | 199 m2 | |
| Cena | 770 000 zł |
Nowe domy w zabudowie bliźniaczej z ogrodem. Położone na cichym i spokojnym osiedlu domów jednorodzinnych.
Inwestycja w realizacji. Przewidywalny termin zakończenia inwestycji - połowa 2023r.
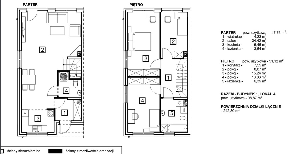
Powierzchnia działki od 199,5m2 do 282,5m2. Powierzchnia użytkowa 98,87m2.
Powierzchnia pokoi na parterze: wiatrołap- 4,23m2, salon z aneksem kuchennym- 34,42m2+5,46m2.
Powierzchnia pokoi na piętrze: korytarz- 7,59m2, 3 pokoje- 8,87m2, 15,24m2, 13,03m2, łazienka- 6,39m2.
Stan nieruchomości w standardzie deweloperskim do wykończenia. Budynek wykonany z cegły silikatowej, posadzki cementowe, okna PCV, drzwi wejściowe antywłamaniowe. Na ścianach tynk gipsowy. Istnieje możliwość zrobienia kominka - wolny kanał kominowy. Instalacje doprowadzane do budynku: telefoniczna, internetowa, TV naziemna i satelitarna. Ogrzewanie oraz ciepła woda z gazowego pieca kondensacyjnego, w pomieszczeniach kaloryfery. Instalacje kanalizacji wodnej (woda zimna i ciepła).
Polecamy ze względu na spokojną i cichą lokalizację. W pobliżu tereny zielone, las, sklepy, szkoła, przedszkole, komunikacja miejska.
Zapraszamy na prezentację.
| Rodzaj oferty | Dom na sprzedaż | ||
|---|---|---|---|
| Liczba pokoi | 4 | ||
| Liczba łazienek | 2 | ||
| Liczba pięter | 2 | ||
| Powierzchnia | 100 m2 | ||
| Działka | 199 | ||
| Cena | 770 000 zł (7 788 zł/m2) | ||
| Forma prawna | Własność | ||
| Forma prawna gruntu | Własność | ||
| Rok budowy | 2023 | ||
| Droga dojazdowa | Utwardzona | ||
| Materiał | Cegła | ||
| Stan budynku | Do wykończenia | ||
| Rodzaj ogrzewania | piec | ||
| Komunikacja | autobus | ||
| Odległość od centrum miasta | 7 km | ||
| Dostępne w okolicy | las, przedszkole, szkoła, apteka, restauracja, kościół, sklep, plac zabaw | ||
| Dodatkowo | internet    telewizja kablowa    kominek    ogród     |