Działka na sprzedaż
| Lokalizacja | Dobra | |
|---|---|---|
| Numer oferty | MOJ21873 | |
| Działka | 2635 m2 | |
| Cena | 922 250 zł |
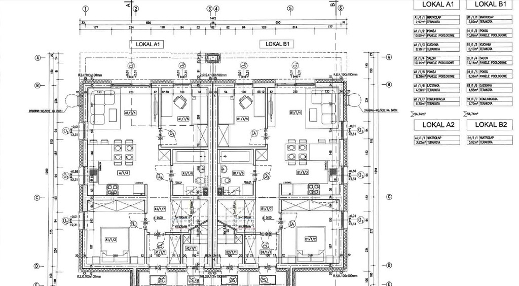
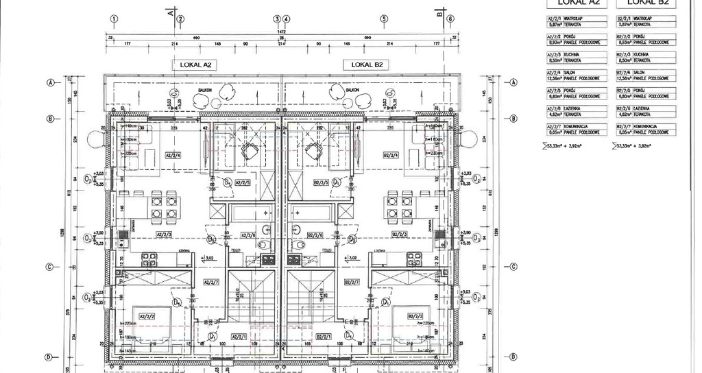
Do sprzedania działka położona w Dobrej na zagospodarowanym osiedlu domów jednorodzinnych z wydanymi warunkami zabudowy i aktualnym pozwoleniem na budowę czterech lokali mieszkalnych. W cenie projekt z pełną dokumentacją techniczną i wizualizacją. Po wtórnym podziale działki możliwość wybudowania na opisanym terenie następnych ośmiu lokali mieszkalnych. Przy działce znajduje się linia gazowa, wodna i energetyczna. Do podanej ceny należy doliczyć podatek VAT wysokości 23%. Zainteresowane osoby zapraszam do kontaktu z maklerem prowadzącym.
| Rodzaj oferty | Działka na sprzedaż | ||
|---|---|---|---|
| Działka | 2635 | ||
| Cena | 922 250 zł (350 zł/m2) | ||
| Forma prawna gruntu | Własność | ||
| Droga dojazdowa | Żwirowa |